Ostatnio pisaliśmy o pastelowym apartamencie, który powstał z połączenia dwóch lokali. Natomiast dzisiaj mamy dla Was zgoła odwrotną historię. Mieszkanie w ceglanym bloku zostało zmienione w dwie stylowe kawalerki, przeznaczone na wynajem krótkoterminowy. Realizację przeprowadziła pracownia MOOD Studio udowadniając, że nie ma małych mieszkań, a tylko te, które są źle urządzone. Zapraszamy do Gdańska, gdzie na bardzo małym metrażu udało się zmieścić wszystko, co potrzebne do komfortowego spędzania czasu i wypoczynku. Jednocześnie metamorfoza mieszkania w bloku, pozwoliła na stworzenie pięknych i funkcjonalnych wnętrz, które mimo małego metrażu są przestronne.
Metraż na wagę złota
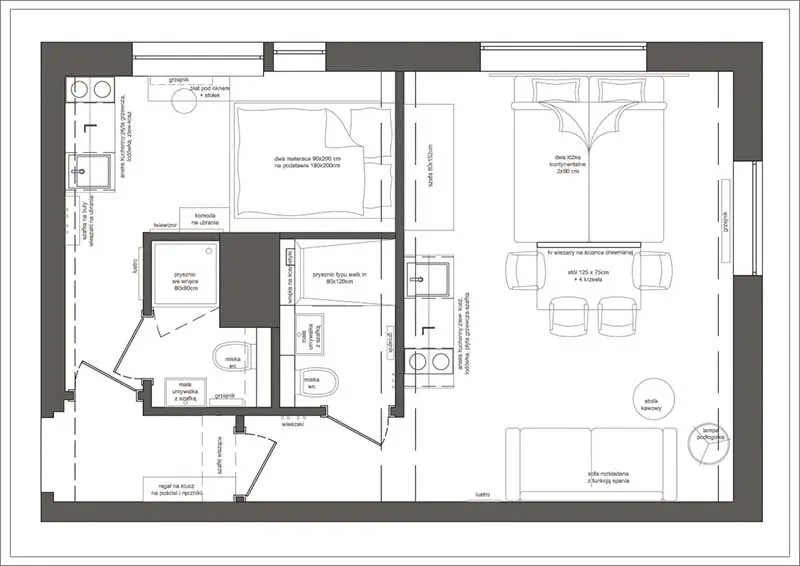
Mieszkanie na granicy Gdańskiego Osieka, nad samym kanałem Raduni, posiadało powierzchnię 39m2. Budynek, w którym się znajduje to niski ceglany blok o 4 kondygnacjach. Architektka Iga Żywica podkreśla, że projekt metamorfozy od samego początku stanowił wyzwanie. Stare budownictwo, przy każdej fazie remontowej zaskakiwało. Natomiast skuwanie tynku i kleju było jak zabawa w archeologa – każdy nowy mieszkaniec nakładał kolejną warstwę. W tym wszystkim chowała się niestabilna instalacja gazowa i elektryczna, którą należało zbudować od nowa. Jednak tego typu projekty, wyjątkowo sprzyjają kreatywnemu myśleniu, dlatego też wszystkie elementy przestrzeni i wyposażenia, zostały najpierw rozrysowane na podłodze. Po podzieleniu mieszkania, otrzymano dwie kawalerki o powierzchni ok. 14 i 25m2, w których każdy centymetr był na wagę złota. Stąd też sprytne rozwiązania, jakie MOOD Studio zaproponowało we wnętrzach: obracany telewizor czy zielony kredens z ukrytą kuchnią.


Apartament zielony i turkusowy
Dobre zarządzenie zastaną przestrzenią mieszkania, pozwoliło na wygospodarowanie dwóch kawalerek z odrębnymi łazienkami i wejściami. Głównym założeniem było stworzenie wnętrz funkcjonalnych z wygodnym podziałem przestrzeni. Aranżacja miała być przytulna i elegancka, bez przytłaczającej ilości rzeczy, które mogłyby zabierać cenne metry, uzyskane po podziale. Rezultatem prac zespołu MOOD Studio są dwa stylowe i wygodne apartamenty, w których można komfortowo spędzić czas i wypocząć. Większa kawalerka, została podzielona ażurowym przepierzeniem, na strefę dzienną i sypialnię. Króluje tutaj butelkowa zieleń w towarzystwie drewna i złotych dodatków. Drugi apartament jest jasny i słoneczny z akcentem barwnym w postaci turkusu. Ścianę za łóżkiem pokrywa elegancka tapeta z motywem liści, natomiast w części przedpokoju architekci zaproponowali ciekawą lamperię. Tutaj, podobnie jak w większej kawalerce, postawiono na dodatki i elementy wykończenia w złocie.


Metamorfoza mieszkania w bloku – dowód, że nie ma małych mieszkań
Realizacja Mood Studio to dowód na to, że nie ma małych mieszkań, a sprytne zarządzanie przestrzenią, nawet z nawet najmniejszej kawalerki uczyni przestronny apartament. Projekt pokazuje również kreatywne rozwiązania, które ułatwią aranżowanie wnętrz i nadają im funkcjonalności. Praca architektów jest nieoceniona w procesie tworzenia mieszkania, szczególnie takiego z rynku wtórnego, gdzie należy zmienić układ czy instalacje. Jeśli sami stoicie przed takim wyzwaniem, zaufajcie profesjonalistom:)
Ostatnio dodane
Ostatnio dodane
Ostatnio dodane










































