W dzisiejszym wpisie, chcemy Wam przedstawić domy, których rozwiązanie nie przyszło wcale z Ameryki, ani z Australii tylko to jest pomysł prosto z Polski, firma Flexicube z Warszawy proponuje domy z kontenerów morskich.
Mobilne i bez pozwolenia na budowę to domy z kontenerów morskich.
Latem stawiamy nad morzem a zimą w górach, takie to własnie mają możliwości domy z kontenerów morskich. Zaletą takich domków to oczywiście mobilność i koszt postawienia takiego domu. Nie musimy też być wcale właścicielem ziemi, możemy np wydzierżawić.
Domki mogą być dobrym rozwiązaniem dla osób, które nie czują się związani z jednym miejscem, mają wolny zawód i chętnie podróżują po świecie.
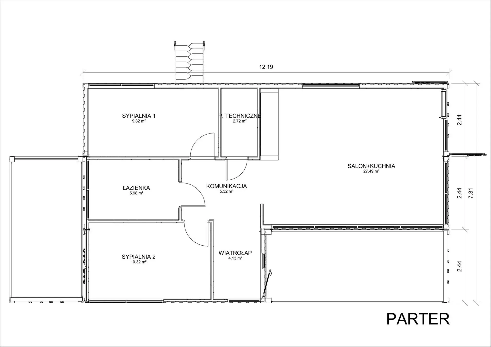
W Polsce znalazły się już osoby, które mieszkają w nich na stałe. W przypadku ostatniego projektu, dom miał pełnić dla naszego klienta rolę zwykłego domu mieszkalnego, więc połączyliśmy ze sobą dwa kontenery. Kwestia wielkości w tym przypadku nie ma znaczenia, bo taki projekt można łatwo rozbudowywać w każdym momencie, dostawiamy do środka kolejny moduł i dom robi się większy – tłumaczy Kuba z biura projektowego Flexicube.

Techniczne rozwiązania
Jak to wygląda od technicznej strony? Każdy kontener tworzy oddzielny moduł, który można łączyć ze sobą przez co dają dużo możliwości i rozwiązań. Można łączyć je w pionie i w poziomie. Technika składania podobna do układania klocków. Części podczas planowanej przeprowadzki w łatwy sposób można rozłączyć i przewieźć w inne miejsce.
Wbrew pozorom taki dom, nie jest tylko dobrym rozwiązaniem na okres letni. Znakomicie sprawdza się również zimą, jak zapewniają pracownicy firmy, jest łatwy do ogrzania poprzez zastosowanie poliuretanowej izolacji, która działa w obie strony. Latem nie jest gorąco bo łatwo się chłodzi, zimą trzyma ciepło. Technologia ogrzewania domków z kontenerów nie różni się wcale od rozwiązań wykorzystywanych w zwykłych mieszkaniach, domach. Jest tak samo ciepło, a temperaturę powietrza można regulować. Są to też budynki energooszczędne.
Domy z kontenerów fascynują nas od dawna. Wyglądają nowocześnie, prosto i ekologicznie. Jedyny minus to jednak cena, nie należą do najtańszych, gdyż dom o wielkości około 28m2 to koszt zaczynający się od 55 tys. Większy dom 84m2 to koszt około 144 tys.
A Wy co myślicie o takim rozwiązaniu i pomyśle na dom rodzinny?







Jeśli jesteście zainteresowani takimi domami prosimy o kontakt z biurem projektowym Flexicube
Internity Home nie posiada w swojej ofercie takich domów.





