Projekt domu o powierzchni 110 m2 powstał w Skierniewicach, w malowniczym miejscu, otoczonym naturą tuż nad samym zalewem. Wnętrza zostały zaprojektowane z myślą o czteroosobowej rodzinie oraz psa rasy Corgi. Inwestorzy ogromną część swojego życia spędzili w Warszawie, dom miał być ucieczką od pędu dużego miasta, uosobieniem spokoju i harmonii. Materiały użyte w projekcie płynnie nawiązują do ogrodu, który wdziera się do wnętrza poprzez szerokie okna balkonowe. Zaciera się granica między wnętrzem a zewnętrzem. Z tego względu postawiłyśmy na drewno w postaci naturalnego dębu, beż oraz biel. Dodatkowym kolorem, który pojawia się w salonie, jednej z łazienek oraz na płytkach w przedpokoju jest odcień niebieski. Do tej subtelnej bazy postanowiłyśmy wpleść elementy z mosiądzu, antracytu stali oraz plecionki wiedeńskiej. Jak mówią sami właściciele – wnętrza są ciepłe, domowe, kojące, a jednocześnie mają w sobie nutkę elegancji.
Niewątpliwą zaletą w części dziennej jest widok przez ogromne okno w salonie. Z tego względu wchodząc do wnętrza domu nie mamy pełnych drzwi, tylko szklane, przesuwne w antracytowej ramie. Dzięki temu, nie tylko wpada nam do przedpokoju więcej światła, ale także po wejściu do środka, mamy od razu widok na zieleń.

Ostatnio dodane
Salon z kominkiem to miejsce odpoczynku i przyjmowania gości przez domowników. Właściciele uwielbiają spędzać czas z książką w ręku lub grami planszowymi w gronie najbliższych – z tego względu w tym miejscu musiała się pojawić zarówno ogromna, jak i wygodna kanapa.


Serce domu
Kuchnia jako serce domu oraz miejsce, gdzie inwestorzy chętnie gotują miała być nie tylko piękna, a także funkcjonalna. Z tego względu została zaprojektowana w literę “U”, żeby zmaksymalizować wielkość przestrzeni roboczej. Blaty zostały wykonane z konglomeratu, a przestrzeń między szafkami ze szkła z motywem plecionki wiedeńskiej (która pojawia się w całym domu). Nad półwyspem zawisły mosiężne lampy, które odbijają się w okrągłym lustrze na wprost kuchni. Od strony jadalni postawiłyśmy na pionowe nafrezowania w mdfie. Nawiązują one do współczesnego motywu boazerii. Przy półwyspie stanęły również proste w formie hokery z litego drewna.

Ostatnio dodane
Gościnna łazienka
Na parterze przewidziane zostało jeszcze jedno pomieszczenie – łazienka gościnna. Tutaj postawiłyśmy na drewniane szafki z plecionką wiedeńską, boazerię z mdfu w kolorze białym oraz dodające dynamiki metalowe lampy na regulowanych wysięgnikach.


Ostatnio dodane
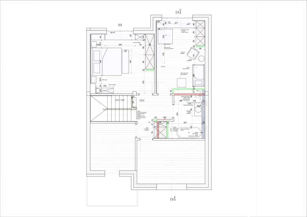
Strefa prywatna
Całe pierwsze piętro zostało zaprojektowane z myślą o prywatności domowników. Znajduje się tu sypialnia rodziców, pokoje dziecięce, gabinet oraz druga, wspólna łazienka.
Sypialnia miała być pomieszczeniem, w którym nasi inwestorzy będą mogli na chwile zapomnieć o codziennych obowiązkach i w ciszy się zrelaksować. W tym celu postawiłyśmy na naturalne, miękkie materiały. Siedzisko zostało obite grubym materiałem w naturalnym odcieniu beżu, ściany zostały wyłożone tapetami zaś łóżko nawiązuje do naturalnych plecionek na parterze. Z tego pomieszczenia najlepiej widać pobliski zalew, co jest dodatkowym atutem bez względu na porę roku. Rozmiar pomieszczenia pozwolił na umieszczenie biblioteczki oraz toaletki przy łóżku. Na suficie pojawił się wiatrak, który spełnia swoją funkcję w upalne dni.

Druga łazienka została zaprojektowana z myślą o pogodzeniu potrzeb wszystkich domowników. Miałyśmy do czynienia z odwiecznym dylematem – wanna czy prysznic?


Inwestorzy nie chcieli z niczego rezygnować. Po kilku przymiarkach udało nam się przesunąć ścianę, aby zrobić miejsce na wolnostojącą wannę. W efekcie pralka i suszarka znalazły swoje miejsce w zabudowie meblowej na korytarzu, gdzie dodatkowo znajdziemy miejsce na chemię i kosze na pranie. Pozostała część kosmetyków jest ukryta za lustrzanymi frontami w łazience, które optycznie powiększają całą przestrzeń. Przytulności dodaje kameralne oświetlenie oraz naturalne faktury płytek.

Butterfly Studio to kreatywne biuro projektowe założone przez Annę Baranowską i Joannę Felczuk. Ponad wszystko kochają dobry design, nietypowe rozwiązania oraz różnorodne
połączenia kolorystyczne. Dbają, aby wnętrza nie tylko cieszyły oko, ale przede wszystkim były funkcjonalne. Kolejne wyzwania projektowe powodują, że wciąż się rozwijają, a to daje im ogromną siłę do dalszego tworzenia.
































