Mobilny biodomek
Dom można przenosić z miejsca na miejsce. Jeśli chcemy go postawić nie potrzebujemy zezwoleń na budowę. A gdy okaże się za mały dla naszej rodziny zawsze możemy go rozbudować.
Pomysłodawcy domku, chcieli odpowiedź na potrzeby społeczeństwa, które w dzisiejszych czasach jest dynamiczne i chętne do zmian. Stworzyli podstawowy moduł mieszkalny, który może być powielany i zestawiany ze sobą wedle potrzeb jego użytkownika. Może też być przewożony z miejsca na miejsce standardowym tirem niskopodłogowym. W momencie, gdy potrzeby rosną, a mieszkańcy potrzebują więcej przestrzeni do życia, można w prosty sposób dołożyć do niego kolejne moduły.
To elastyczny dom, który dostosowuje się do aktualnych potrzeb i stylu życia mieszkańców.

Autorzy projektu mówią: „….Podstawowymi założeniami projektu była kontrola śladu ekologicznego, który pozostawia budynek w trakcie produkcji, budowy i utylizacji, zastosowanie naturalnych, zdrowych, niskoprzetworzonych i biodegradowalnych materiałów w nowoczesnym wydaniu. Do produkcji biodomku używa się: drewna, ekocelulozy, farb glinianych, wełny owczej, opalanej, naturalnej, olejowanej elewacji.”

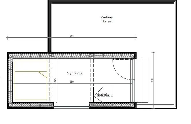
Dom stawiany jest na punktowych, wkręcanych fundamentach, które można demontować. Taki domek jest łatwo zdemontować i przenieść w inne miejsce. Po czasie nie pozostanie po nim żaden ślad w pierwotnym miejscu, a grunt zarośnie trawa. Moduły wykonane są z naturalnych, zdrowych materiałów. Podstawowy moduł systemu ma wymiary 2,8 m na 6,44 m i wysokość około 3 m. Wymiary zostały tak dobrane, by przewozić go w całości na przyczepie standardowego tira oraz by we wnętrzu zaaranżować całoroczną przestrzeń mieszkalną. Powierzchnia dwóch modułów nie przekracza 35 mkw., dzięki czemu nie trzeba ubiegać się o pozwolenie na budowę.
Jaka cena?
Wszystko zależy jaką opcję domku wybierzemy. Firma oferuje domy w kilku standardach: w stanie surowym, stanie deweloperskim oraz niebawem „pod klucz”. Najmniejszy biodomek parterowy w o powierzchni użytkowej 12,28 mkw. kosztuje 48 200 zł, dom parterowy składający się z dwóch modułów, o powierzchni 27,12 mkw. – 79 tys. zł w stanie surowym. Więcej informacji na temat cen i standardów wykończenia znajdziecie na stronie: www.biodomek.pl.
Projekt: Magdalena Górska, eKodama Architektura
Wykonanie: Dobry Dom Moritz Reichert, Mariusz Sarnicki Biohabitat Wrocław
Ostatnio dodane
Ostatnio dodane
Ostatnio dodane


























