Plecionka wiedeńska, szkło ryflowane, drewno w dwóch gatunkach, mozaiki oraz przytulne tkaniny – takie materiały wykorzystali architekci z Grupy NONO do urządzenia 68 – metrowego mieszkania dla pary. Jednakże eklektyczny charakter wnętrza budują nie tylko zróżnicowane faktury. Elementy vintage wraz z dębową jodełką na podłodze, klimatyczne małe płytki, z których największe mają rozmiar 10×10, pośród nowoczesnego wyposażenia, stworzyły niezwykły klimat.


Mieszkanie szyte na miarę potrzeb
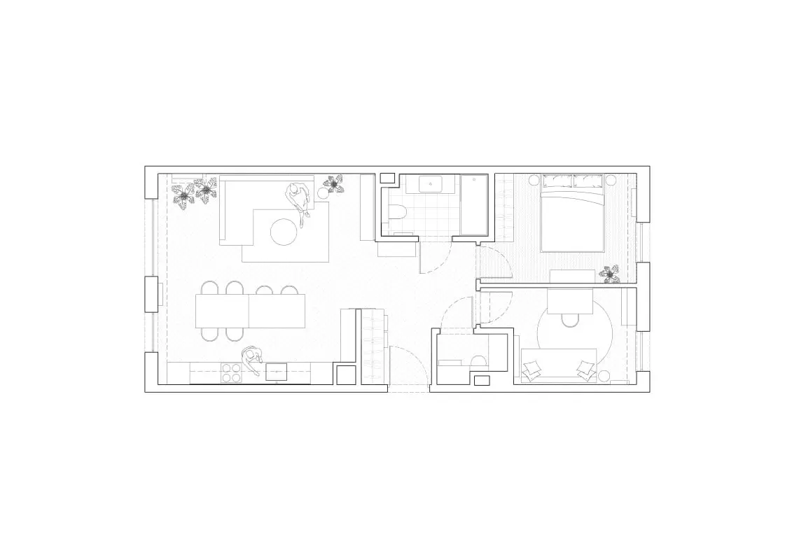
Krakowski apartament stanowi kompilację ciepłych i zimnych barw, miękkich tkanin i wyrazistych ryflowań. Spersonalizowane, nowoczesne rozwiązania, którymi jest przesiąknięty projekt, idą w parze z tradycyjnym podejściem do aranżacji. Architekci postawili przede wszystkim na pełną funkcjonalność, czego wyrazem są delikatne, ale znaczące zmiany w układzie funkcjonalnym. Życzeniem inwestorów było wydzielenie pomieszczenia gospodarczego z funkcją pralni. Jego miejsce znalazło się tuż przy holu, w miejscu pierwotnie przeznaczonym na malutką toaletę. Architekci postanowili powiększyć pomieszczenie kosztem sąsiadującego pokoju.

Strefa dzienna
Dużym plusem projektu jest duża, bo 32 – metrowa strefa dzienna. Jak wspominają architekci największym wyzwaniem było ustawienie kanapy względem telewizora, aby komfortowo można było relaksować się przy ulubionych filmach i serialach. Dzięki wypoczynkowi Elis od Sits z oparciem części szezlongowej, stało się to możliwe.
Część wspólna, która składa się z kuchni i salonu połączona jest takim samym wykończeniem podłogi, dzięki czemu wydaje się większa i płynnie się przeplata. Jego centrum stanowi duża wyspa, do której przylega jadalnia z dedykowanymi czteroma miejscami do siedzenia, z możliwością rozłożenia stołu dla większej ilości osób.

Beżowa kuchnia, czyli klasyk w odświeżonej formie
W kuchni, podobnie jak w pozostałej części mieszkania, dominuje połączenie drewna i beżu. Minimalistyczne gładkie fronty nabierają bardziej wyrazistego charakteru w towarzystwie ryflowanego szkła oraz mozaiki ułożonej z płytek typu <<kit kat>>. Bardzo dekoracyjnym elementem aranżacji kuchni jest witryna, która dzięki frontom z ornamentowego szła uchyla rąbka tajemnicy, co skrywa. A jest to ulubiona ceramika, będąca prywatnym zbiorem inwestorów.
Minimalistyczny charakter kuchni tworzą nie tylko zastosowane materiały, ale również rozwiązania, jak np. podwieszany zlew. Brak wystających rantów nie tylko wpływa na lepszy wygląd kuchni, ale też jest dużym ułatwieniem podczas wycierania blatów.



Ostatnio dodane
W rytmie natury
Całe mieszkanie otula przytulnością. Jest to zasługą dużej ilości roślin, naturalnych materiałów oraz przewagi obłych kształtów, które wprowadzają przyjemne dla oka kadry. Nie bez znaczenia jest również zastosowana paleta barw. Architekci postawili na jasną kolorystykę. We wnętrzu królują beże (będące nową szarością), biel, odcienia drewna (dąb i orzech) oraz mocniejsze plamy koloru, takie jak: błękit, zieleń oraz rudość.
Skonfrontowanie zimnego błękitu z ciepłymi brązami, karmelami i beżami, co ma miejsce w salonie i łazience, wbrew pozorom wprowadza do projektu harmonię. Dopełnieniem aranżacji salonu jest galeria utworzona z grafik polskich artystów.


Ostatnio dodane
Łazienka w klimacie japandi
Łazienka, pomimo zastosowanego bezpiecznego beżu, jest odważną propozycją. Jej bazę stanowią małe płytki w stylu zellige 10×10, którym wtóruje kamienna mozaika. Naszym zdaniem efekt jest obłędny i jesteśmy pewni, że ten projekt łazienki zostanie w naszych myślach na długo. Łazienka jest nie tylko unikatowa, ale też idealnie obrazuje aktualne trendy. Przełamaniem dla beżowego total looku jest błękitna zabudowa nad wc. Kolor nieba doskonale koresponduje z orzechową szafką podumywalkową, wykonaną na indywidualne zamówienie przez stolarza Grupy NONO.
Ze względu na mały metraż łazienki, architekci postawili na rozwiązanie 2w1, czyli wannę z funkcją prysznica. Szklany parawan chroni łazienkę przez rozchlapującą się wodą, a jego minimalistyczny design nawet w najmniejszym stopniu nie zakłóca estetyki wnętrza.


Ostatnio dodane
Strefa prywatna
Mieszkanie jest podzielone na dwie strefy: dzienną i prywatną. W części nocnej znajdziemy dwa pokoje, z czego jeden jest sypialnią główną, drugi pełni rolę gabinetu. Powierzchnia sypialni wynosi zaledwie 11 m.kw. Ale od czego mamy zdolnych architektów? Jest tu nie tylko pięknie i przytulnie, ale też udało się wygospodarować miejsce na dużą szafę oraz toaletkę z lustrem, w roli której doskonale sprawdziła się konsola z funkcją przechowywania.
Naturalny sznyt wprowadzają fronty z plecionki wiedeńskiej oraz zielone zasłony. Na podłodze znalazła się miękka wykładzina, która ma wspaniałe właściwości akustyczne.
W pełni tapicerowane łóżko oraz wykładzina na powierzchni całego pomieszczenia sprawia, że jest to najprzytulniejsza sypialnia, jaką do tej pory zaprojektowała Grupa NONO.



Ostatnio dodane








































